Funkcjonalny mały dom w Kobyłce

wołomiński, Kobyłka, Kobyłka

785 000 PLN

Numer oferty20975
Typ transakcjiSprzedaż
Cena785 000 PLN
Powierzchnia61 m2
Cena za m212 869 PLN / m2
Liczba pokoi3
Powierzchnia działki m2110
Rok budowy2024
Stan domubardzo dobry
Rynekwtórny
Typ zabudowy1/2 bliźniaka
Forma własnościhipoteczne
Liczba sypialni2
Funkcjonalny mały dom w Kobyłce (wołomiński, Kobyłka, Kobyłka)

Do sprzedania bliźniak usytuowany w Kobyłce przy ul. Podleśnej.
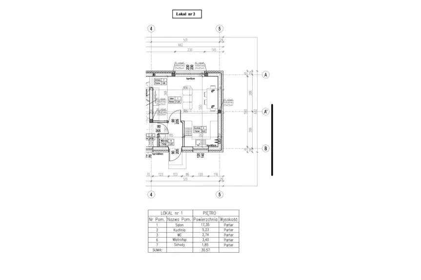
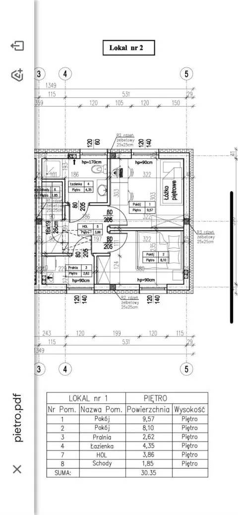
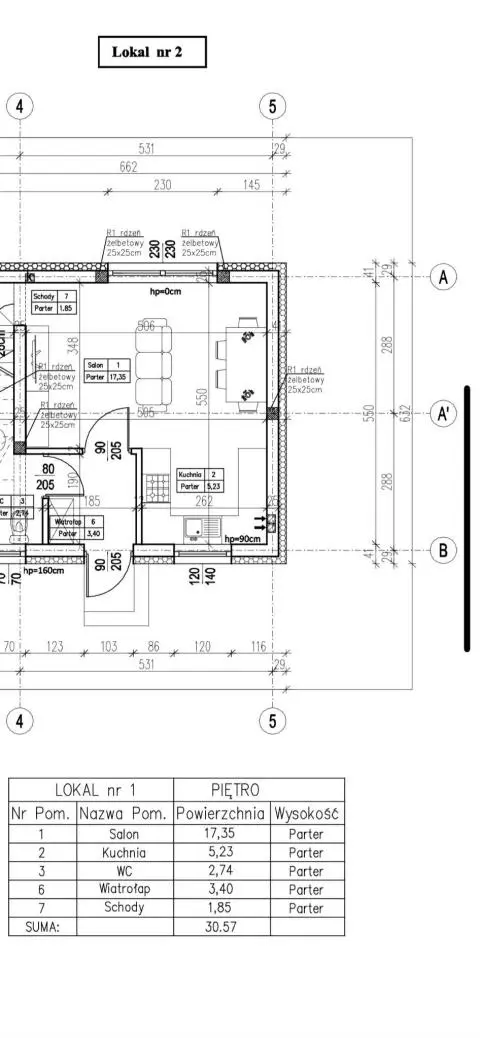
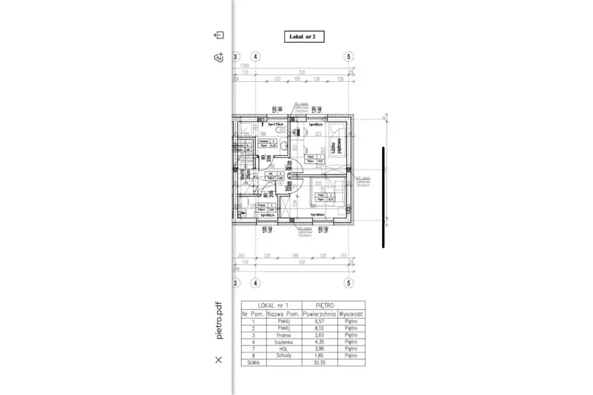
Budynek składa się z dwóch poziomów o metrażu 61m. Dzięki bardzo dobrze rozplanowanym rozkładzie, mieszkanie jest przestronne i funkcjonalne. Dodatkowo mieszkanie posiada 30m2 strychu, który jest ocieplony i może zostać dowolnie zagospodarowany.
Na I poziomie znajduje się część dzienna z ogrodem, przedpokój, łazienka, salon z aneksem kuchennym z wyjściem na ogród.
Na II poziomie znajduje się pralnia, łazienka, 2 pokoje zamknięte wejście na strych
Na ogródek można wyjść z domu jak i przejść stroną zewnętrzną. Przed blokiem znajdują się dwa miejsca parkingowe.
W wyposażeniu mieszkania znajduje się również klimatyzacja, a całe mieszkanie posiada ogrzewanie podłogowe zasilane pompą ciepła. Okna są trzyszybowe.
Z racji tego, że budynek został oddany do użytku w 2024r obowiązuje nadal rękojmia dewelopera.
Budynek znajduje się blisko trasy S8 oraz trasy nad Zegrze, a z drugiej strony blisko centrum Kobyłki i Zielonki. Nowo wybudowana szkoła podstawowa w odległości 500m ( 7 min na pieszo ). Różne przedszkola i żłobek w odległości do 1km. Blisko sklep ALDI, BIEDRONKA, LIDL, PEPCO, ROSSMAN etc., natomiast dojazd do aglomeracji MARKI M1 zajmuje 10 minut autem. Bliskość lasu i spokojna zabudowa rodzinna zapewnia spokój i ciszę, a bliska odległość do wszelkiego rodzaju sklepów, aptek czy przychodni zapewnia wszelkie niezbędne potrzeby.
Mieszkanie jest jasne, przestronne i gotowe do zamieszkania, a meble w pomieszczeniach zostają do uzgodnienia.

Kontakt Anna Szcześniak
606 141 056

Niniejsze ogłoszenie jest wyłącznie informacją i nie stanowi oferty w rozumieniu art. 66 § 1 Kodeksu Cywilnego.
Za wykonaną usługę pośrednictwa pobieramy wynagrodzenie.


Oferta wysłana z programu IMO dla pośredników.
Informacje
Poddasze Klimatyzacja
wołomiński, Kobyłka, Kobyłka

Kontakt